Not Available Anymore  

4 Bedroom Town House For Sale

Woolley Grange West Yorkshire Darton, S75 5GT

S75 5GT, Goldsworthy Way, Woolley Grange, Barnsley, S75, Barnsley

Sale Price: £210,000

Listed 15 days ago and may not be available Listed on 2/19/2015

 66 Northgate, Wakefield, West Yorkshire,
*When you call don't forget to mention Houser.co.uk

Woolley Grange West Yorkshire Darton, S75 5GT

Property Summary:

Town House
4 Bed(s)
-- Bath(s)
interested in this property.
 

Property description

Immaculately presented four bedroom end town house situated in this semi rural location of Woolley Grange.



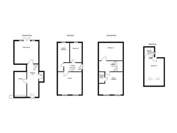
Briefly comprising to the ground floor a good size entrance hall with downstairs w.c., superb dining kitchen with double glazed patio doors leading to the enclosed rear garden. To the first floor landing there is a lounge with far reaching views, bedroom four and immaculate modern family bathroom. The second floor providing access to the master bedroom with en suite shower room and further second bedroom, whilst to the fourth floor there is a double bedroom with en suite facilities.



The property benefits from block paved driveway to the front leading to an integral garage with up and over door, power and light.



Properties of this type are rarely seen on the open market for long, therefore and internal inspection is recommended to avoid disappointment. All viewings are strictly by prior appointment only and come highly recommended. 

ACCOMMODATION  

ENTRANCE HALL 18' 4" x 5' 10" (5.60m x 1.78m) Wooden flooring, central heating radiator, smoke alarm, door leading into the garage, store/cloak and downstairs w.c. 

DOWNSTAIRS W.C. Comprising; low flush w.c., pedestal wash hand basin, fan, wooden flooring, central heating radiator, tiled splash backs. 

DINING KITCHEN 14' 6" x 14' 8" (4.42m x 4.49m) Fitted with a range of modern base and wall height units, gas hob with extractor fan over, electric oven, complimentary work surfaces, plumbing for dishwasher and automatic washing machine, single drainer stainless steel sink with mixer tap over, double doors leading to the rear garden, space for fridge/freezer, tiled flooring, tiled splash backs, central heating radiator, smoke alarm. 

FIRST FLOOR LANDING  

LOUNGE 13' 7" x 14' 7" (4.15m x 4.45m) Two UPVC double glazed windows to the front, two central heating radiators, T.V. Aeriel point, smoke alarm. 

BEDROOM FOUR 10' 4" x 8' 7" (3.16m x 2.64m) UPVC double glazed window over looking the rear garden, central heating radiator, smoke alarm. 

BATHROOM/W.C. 13' 1" x 7' 0" (4.00m x 2.15m) L shaped room. Fitted with a white three piece suite comprising; low flush w.c., pedestal wash hand basin, jacuzzi bath, UPVC opaque double glazed window, tiled splash backs, tiled flooring, heated towel rail and separate walk in shower cubicle. 

STAIRS TO SECOND FLOOR Central heating radiator, smoke alarm. 

BEDROOM ONE 13' 7" x 12' 10" (4.15m x 3.92m) Two UPVC double glazed windows with superb views, two central heating radiators, smoke alarm, door leading into the en suite. 

EN SUITE 6' 4" x 4' 1" (1.94m x 1.26m) Comprising; separate walk in shower, low flush w.c., pedestal wash hand basin, spotlights to the ceiling, tiled flooring and splash backs. 

BEDROOM TWO 8' 10" x 14' 6" (2.70m x 4.44m) Two UPVC double glazed windows over looking the rear garden, central heating radiator, smoke alarm. 

STAIRS TO THIRD FLOOR  

BEDROOM THREE 14' 8" x 10' 10" (4.48m x 3.32m) Two timber Velux windows with superb views, central heating radiator, smoke alarm, door leading into en suite shower room. 

EN SUITE 6' 7" x 7' 9" (2.03m x 2.38m) Comprising a three piece suite of pedestal wash hand basin, low flush w.c., walk in shower cubicle, tiled splash backs, timber Velux window over looking the rear garden, tiled floor. 

OUTSIDE There is a block paved drive providing parking for two vehicles, the driveway leads to an integral garage. To the rear there is an enclosed attractive garden with decking and a good size lawn area. 

DIRECTIONS Leave Wakefield via Northgate continue ahead to the Bull Ring, bear right onto Silver Street, right onto Westgate (A642) continue along onto the A638, bear right, immediately turn left onto the A638 at the roundabout take the first exit and join the M1 motorway, leave the M1 at J38, at Haigh roundabout take the third exit onto the A637, turn left onto Church Street, turn left onto Station Road, right onto Woolley Colliery Road continue along into Springhill, turn left onto Maybury Drive bear left onto Goldsworthy Way. 

EPC RATING To view the full Energy Performance Certificate please either call into one of our four local offices or search for the property on www.richardkendall.co.uk 

LAYOUT PLANS These floor plans are intended as a rough guide only and are not to be intended as an exact representation and should not be scaled. We cannot confirm the accuracy of the measurements or details of these floor plans. 

VIEWINGS To view please contact the Wakefield office on 01924 291294 and they will be pleased to arrange a suitable appointment. 

LEASEHOLD The ground rent is £1 (pa). The remaining term of the lease is 200 years (2014). A copy of the lease is held on our file at the Wakefield office. 

Property Info: