Not Available Anymore  

4 Bedroom Town House For Sale

Horbury Wakefield Netherton, WF4 5NY

WF4 5NY, Redshank Place, Horbury, Wakefield, WF4, Wakefield

Sale Price: £217,000

Listed 15 days ago and may not be available Listed on 2/19/2015

 66 Northgate, Wakefield, West Yorkshire,
*When you call don't forget to mention Houser.co.uk

Horbury Wakefield Netherton, WF4 5NY

Property Summary:

Town House
4 Bed(s)
-- Bath(s)
interested in this property.
 

Property description

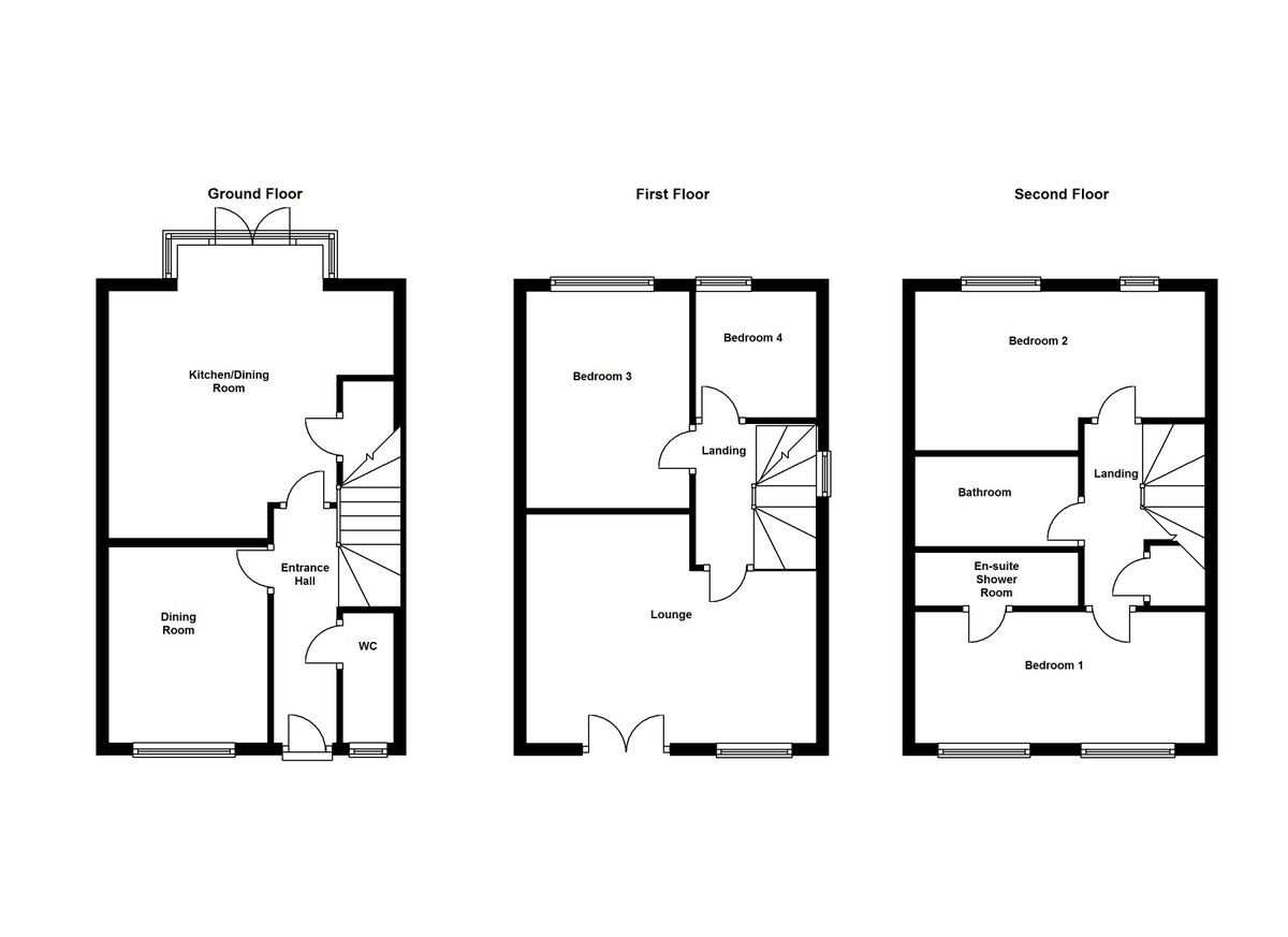
Offering versatile living accommodation over three levels, located at the head of a cul de sac in this sought after modern and attractive development with four bedrooms, house bathroom and en suite to master bedroom.



The contemporary accommodation briefly comprises of; entrance hall, ground floor cloak/w.c., contemporary style kitchen with dining/sitting area off and a formal dining room. To the first floor landing there are two bedrooms and a spacious L shaped lounge, stairs to the second floor leading to two further bedrooms and house bathroom, in addition to the en suite off the master bedroom.



Outside the property has a tarmacadam courtyard with two allocated parking spaces, spacious lawned area to the front with a hedged perimeter, timber gate provides access through to the side garden having a timber store unit, large lawn area and timber panel surround. The rear garden has a spacious lawned area, paved patio section, timber panel surround and a wooded copse to the side of the property.



Horbury is a host to a good range of amenities including shops and schools, whilst daily access to Leeds and further afield can be had via the M1 motorway which is only a short distance away. The property is within short walking distance to Coxley Woods and the canal.



Properties of this type have always proved in demand with the home buyer and we are sure that this property will be of no exception. Only a full internal inspection will reveal all that is on offer at this quality home. 

ACCOMMODATION  

ENTRANCE HALL Front entrance door with two decorative glazed panels, laminate floor covering, central heating radiator, stairs leading to the first floor, doors leading off to the kitchen/diner, ground floor w.c. and formal dining room. 

GROUND FLOOR W.C. 6' 6" x 2' 11" (2.00m x 0.90m) Laminate flooring, fitted with a two piece white suite comprising of pedestal wash basin, low flush w.c., white tiled splash backs, central heating radiator, tiled window ledge, UPVC double glazed frosted window to the front elevation. 

KITCHEN/DINER/SITTING AREA 14' 11" x 15' 3" (4.57m x 4.65m) Door off to the pantry cupboard having plumbing and drainage for an automatic washing machine. The kitchen area has laminate floor covering, contemporary style fitted kitchen with a range of base and wall units having chrome handles and laminate work surfaces, tiled splash backs, stainless steel sink and drainer with chrome mixer tap, built in Belling oven with four ring ceramic hob, extractor canopy above, integrated fridge/freezer, built in wine rack, integrated dishwasher, under plinth heating, under unit lighting. The dining/sitting area has a central heating radiator, UPVC double glazed bay section incorporating a dual opening door into the rear garden, laminate flooring. 

FORMAL DINING ROOM 10' 4" x 8' 4" (3.15m x 2.55m) Laminate flooring, central heating radiator, UPVC double glazed window to the front elevation. 

FIRST FLOOR LANDING UPVC double glazed window to the side elevation, access to two bedrooms and lounge. 

LOUNGE 15' 2" x 9' 0" (4.64m x 2.75m) plus 1.40m x 2.62m. L shaped. Coving to the ceiling, UPVC double glazed window to the front elevation, UPVC double glazed dual opening doors onto a Juliette balcony, central heating radiator, electric fire with a marble contemporary hearth, interior and decorative surround, t.v. point. 

BEDROOM THREE 11' 11" x 8' 7" (3.65m x 2.63m) Central heating radiator, UPVC double glazed window to the rear elevation. 

BEDROOM FOUR 6' 7" x 6' 3" (2.03m x 1.93m) Central heating radiator, UPVC double glazed window to the rear elevation. 

STAIRS LEADING TO  

SECOND FLOOR LANDING UPVC double glazed window to the side elevation, loft access, doors leading off to two bedrooms and house bathroom/w.c., airing cupboard housing the boiler. 

MASTER BEDROOM 15' 3" x 8' 11" (4.66m x 2.73m) Dual UPVC double glazed windows to the front elevation, fitted wardrobe units, central heating radiator, door off leading into the en suite shower room. 

EN SUITE 8' 7" x 2' 10" (2.62m x 0.87m) Fitted with a three piece white suite comprising of low flush w.c., pedestal wash basin with two chrome taps, tiled splash backs, enclosed shower cubicle with a thermostatic shower, central heating radiator, extractor fan. 

BEDROOM TWO 15' 3" x 8' 3" (4.65m x 2.53m) narrowing to 2.03m. Laminate flooring, fitted wardrobe units, UPVC double glazed dual windows to the rear elevation, central heating radiator, t.v. point. 

HOUSE BATHROOM/W.C. 11' 3" x 4' 9" (3.44m x 1.46m) Fitted with a three piece white modern suite comprising of a low flush w.c., pedestal wash basin with two chrome taps, white tiled splash backs, panelled bath with two chrome taps and a thermostatic mixer shower, part tiled walls, central heating radiator, extractor fan. 

OUTSIDE To the front of the property there are two allocated parking spaces with a large tarmacadam courtyard, large lawn area to the front with a paved walkway leading to the front entrance door. The side garden having a lawn area with a timber panel surround and private aspect. The rear garden has a pleasant paved patio section, one of the larger gardens of the development being situated at the edge of the development, a spacious lawn area with mature shrubbery surround and a wooded copse to the side. 

DIRECTIONS Leave Horbury via Cluntergate, continue up the high street and turn left onto Highfield Road, continue onto Quarry Hill, at the end of the road turn right onto Southfield Lane, this then becomes Bridge Road, at the traffic lights turn left onto Netherton Lane, first right turning onto Bittern Croft, take your second left into Redshank Place where the property can be found indicated by our for sale board. 

EPC RATING To view the full Energy Performance Certificate please either call into one of our four local offices or search for the property on www.richardkendall.co.uk 

LAYOUT PLANS These floor plans are intended as a rough guide only and are not to be intended as an exact representation and should not be scaled. We cannot confirm the accuracy of the measurements or details of these floor plans. 

VIEWINGS To view please contact the Horbury office on 01924 260022 and they will be pleased to arrange a suitable appointment. 

Property Info: