Not Available Anymore  

3 Bedroom Detached for sale

Forge Close Newport, NP18 3PW

NP18 3PW, Forge Close, Caerleon, Newport, NP18, Newport

Sale Price: £171,000

Listed 15 days ago and may not be available Listed on 4/2/2015

 Bank Buildings,, 67 Bridge Street, Newport
*When you call don't forget to mention Houser.co.uk

Forge Close Newport, NP18 3PW

Property Summary:

Detached
3 Bed(s)
-- Bath(s)
interested in this property.
 

Property description

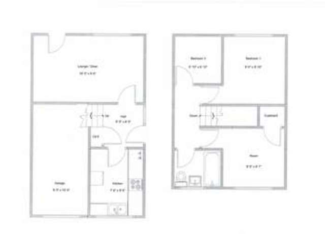
Well maintained THREE BEDROOM detached property situated towards the end of a cul-de-sac on a mature development between Caerleon and Ponthir within the catchment area of well respected schools. Gas combi heating and uPVC double glazing. Level lawned gardens with drive and garage. NO CHAIN



Hall

uPVC double glazed entrance door and side screen, radiator, cloaks cupboard.



Livingroom (16' 03\" x 11' 09\" or 4.95m x 3.58m)

uPVC double glazed rear window overlooking the level lawned garden, radiator, French door to garden.



Livingroom (2nd view)





Kitchen (10' 03\" x 8' 03\" or 3.12m x 2.51m)

Fitted floor and wall cupboard and drawer units, roll top work surfaces, tiled surrounds, stainless steel drainer sink unit, plumbed for washing machine, radiator, wood laminate floor, uPVC double glazed window.



First Floor Landing

Loft access hatch.



Bedroom 1 (12' 03\" x 9' 09\" or 3.73m x 2.97m)

uPVC double glazed rear window, radiator.



Bedroom 2 (9' 03\" x 8' 06\" or 2.82m x 2.59m)

uPVC double glazed front window, radiator, airing cupboard housing Vaillant gas fired combination boiler.



Bedroom 3 (9' 03\" x 6' 06\" or 2.82m x 1.98m)

uPVC double glazed rear window, radiator.



Bathroom (7' 0\" x 5' 06\" or 2.13m x 1.68m)

Fully tiled surrounds, panelled bath with Mira shower over, pedestal wash basin, low level w.c., radiator, uPVC double glazed window.



Central Heating

A Vaillant gas fired boiler provides hot water for central heating and domestic use and the property benefits from uPVC double glazing.



Outside

Level front garden with boundary wall and side gate.



Front drive affording off road parking. Attached GARAGE with up and over door.



Good size level lawned rear garden with paved patio. Fence boundaries.

Property Features :

  • DETACHED PROPERTY IN CAERLEON SCHOOL CATCHMENT AREA
  • THREE BEDROOMS
  • SPACIOUS LIVINGROOM WITH FRENCH DOOR
  • GOOD SIZE FITTED KITCHEN
  • BATHROOM WITH MIRA SHOWER