Not Available Anymore  

3 Bedroom Semi-Detached For Sale

Wokingham Berkshire Wokingham, RG40 1XE

RG40 1XE, Ward Close, Wokingham, RG40, Wokingham

Sale Price: £300,000

Listed 15 days ago and may not be available Listed on 2/19/2015

 39 Peach Street, Wokingham, Berkshire,
*When you call don't forget to mention Houser.co.uk

Wokingham Berkshire Wokingham, RG40 1XE

Property Summary:

Semi-Detached
3 Bed(s)
-- Bath(s)
interested in this property.
 

Property description

Situated in a quiet cul-de-sac within walking distance to Wokingham Town Centre, this semi-detached property requires modernisation and could be extended into a 4 bedroom (S.T.P.P.) if required. The accommodation comprises 23' living / dining room, kitchen, three bedrooms, bathroom and separate cloakroom. The rear garden is secluded and laid to lawn and to the front is a block paved driveway for several vehicles leading to a single garage and a further workshop.

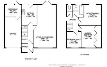
Ground Floor

Entrance Hall

Kitchen 11'8\" x 8'7\" (3.56m x 2.62m). Rear aspect double glazed window, door to rear garden, fitted range of floor & wall mounted storage units, inset stainless steel sink & drainer with mixer tap, 4-ring electric hob with oven & grill (with gas connections to both sides), washing machine, fridge, gas boiler, part tiled walls.

Living/Dining Room 23'3\" x 12'5\" (7.09m x 3.78m).

First Floor

Master Bedroom 11'9\" x 8'5\" (3.58m x 2.57m).

Bedroom Two 9'7\" x 9'6\" (2.92m x 2.9m).

Bedroom Three 8'10\" x 8'1\" (2.7m x 2.46m).

Bathroom    Two piece suite comprising pedestal wash hand basin, panel enclosed bath, tiled walls, heated towel rail.

Cloakroom    Rear aspect double glazed window, WC.

Outside

To The Rear    Mainly laid to lawn with patio area. Flower & shrub borders. Enclosed by timber panel fencing, slabbed pathway to rear.

To The Front    Block paved driveway parking for multiple vehicles, the remainder being laid to lawn.

Single Garage    Light & power connected, door to:-Workshop Area: Rear aspect window & rear aspect door. Light & power connected.

Image of   living room
Image of living room  
Image of   bedroom
Image of bedroom  
Image of   kitchen
Image of kitchen  

Property Features :

  • Cul-De-Sac
  • Walking Distance to Town
  • Modernisation Required
  • Three Bedrooms
  • UPVC Double Glazing

Property Info: